Auction

Auction

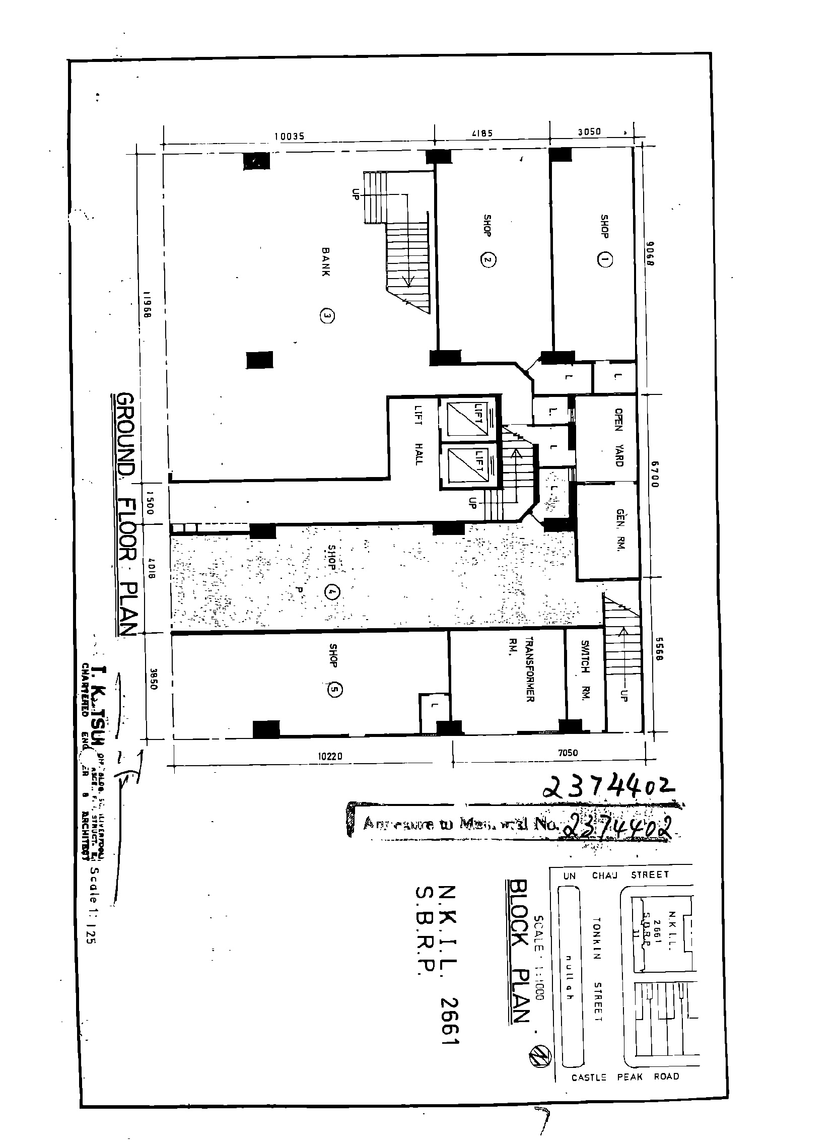
SHOP 4 AND SHOP 5 ON GROUND FLOOR HANG PONT COMMERCIAL BUILDING NO.31 TONKIN STREET KOWLOON

Usage

Non-Domestic

Open Day

Subject to the tenancy

Gross Floor Area
(about) (sq.ft.)

Total 1400
(for reference only)

Opening Price(M)

2000

Contact

Important Notice:Interested bidders shall appoint his / her solicitors to inspect the muniments of title of the Property. Intending bidders who choose not to inspect the title deeds or not ot verify the titles to the Property are at their own risk. Purchasers shall not make any requisition or objection in respect thereof and shall complete the transaction and comply with all the terms in such Conditions of Sale. Muniments of title of the Property could be inspected prior to the sale during business hours at the office of the Vendor's Solicitors. Intending bidders shall conduct physical inspection of the Property before the auction. The Vendor gives no warranty as to whether there exists any illegal structure / alteration in the Property. The Vendor would not give any warranty that the structures of the Property are in compliance with the ordinance(s). The purchaser shall not raise any requisition regarding illegal structure / alteration nor refuse to complete the purchase or similar grounds. Order for auction auction may change, please arrive on time.

Location Map

Video